Casa a reformar con proyecto y licencia en Artá
Artá, 
            Referencia: 46530
            Tipo propiedad
                                Casa
                            Dormitorios
                3
            Baños
                3
            m2
                178
            m2
                146
            
                        Descripción
                    
                    
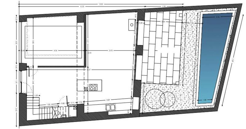
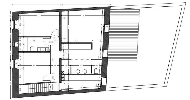
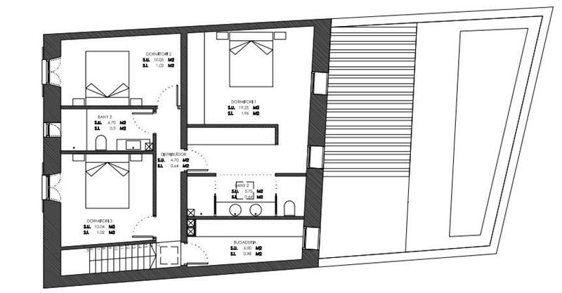
                            Casa de pueblo a reformar con proyecto y licencia de obra, lo que permite al comprador iniciar de inmediato la reforma sin trámites adicionales. Según el proyecto aprobado, la vivienda de 178m2 aprox. se distribuye en dos plantas. En la planta baja se prevé un luminoso salón recibidor con cocina integrada y un vestíbulo. La primera planta contará con tres dormitorios dobles, 3  baños, coladuria. Garaje, trastero y piscina. Una oportunidad única para disfrutar de la vida en  uno de los pueblos más encantadores de Mallorca, combinando el encanto de la arquitectura mallorquina con el confort de un proyecto moderno ya planificado y listo para ejecutar.
                        
                    
            Detalles
        
        | Tipo de Propiedad | Casa | 
| M2 superficie | 178 m2 | 
| M2 Solar | 146 m2 | 
| Dormitorios | 3 | 
| Baños | 3 | 
            Características
        
        
                            Piscina: Si
                        
                    
                
            
            Extras
        
        
                    Terraza
                
                            
            Certificacion energética
        
        En trámites
Solicitar Información
Vistos recientemente
            
            Finca rustica con jardín y piscina zona Llucmajor
                                        Llucmajor  Llucmajor