Meine Favoriten
DeutschDeutsch

Sanierungsobjekt mit genehmigtem Projekt – Ihre Chance in Artà

Artá,
Produkt-Referenz: 46530
Art der Immobilie
Dorfhaus
Schlafzimmer
3
Badezimmer
3
m2
178
m2
146
295.000 €
Beschreibung
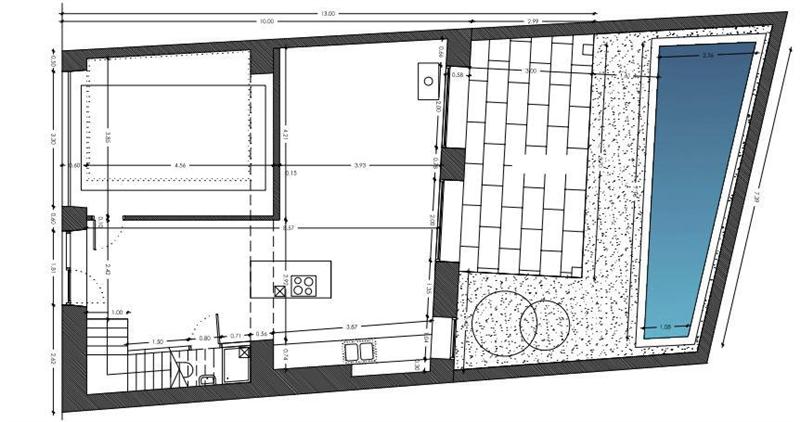
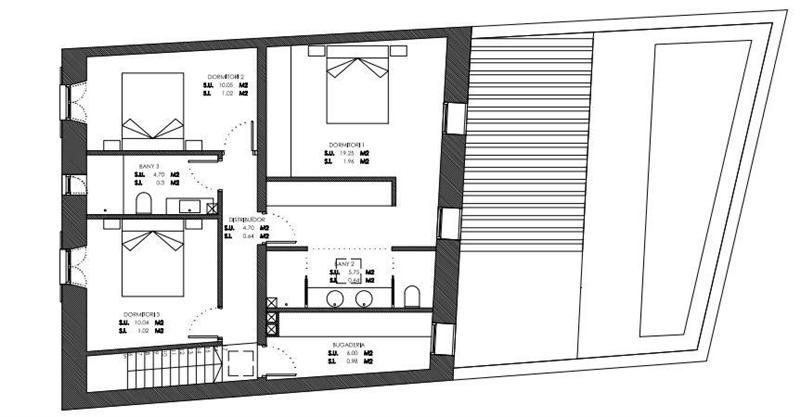
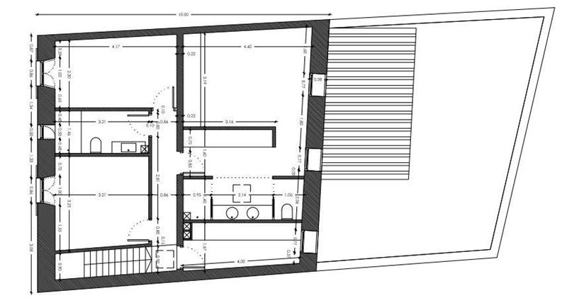
Dorfhaus zur Renovierung mit genehmigtem Projekt und Baugenehmigung, sodass der Käufer die Sanierung sofort und ohne zusätzliche Formalitäten beginnen kann. Gemäß dem genehmigten Projekt ist die Immobilie auf zwei Etagen verteilt. Im Erdgeschoss mit ca. 63,80 m² sind ein heller Wohn-Essbereich mit integrierter Küche und ein Eingangsbereich vorgesehen. Das Obergeschoss mit ca. 85,30 m² wird drei Doppelschlafzimmer, drei Badezimmer und eine Waschküche umfassen. Ein Garage, Abstellraum und Swimmingpool gehören ebenfalls dazu. Eine einzigartige Gelegenheit, das Leben in einem der charmantesten Dörfer Mallorcas zu genießen – mit dem Charme der mallorquinischen Architektur und dem Komfort eines modernen, bereits geplanten und genehmigten Projekts.
Adresse
Art der Immobilie Dorfhaus
M2 Fläche 178 m2
M2 Grundstück 146 m2
Schlafzimmer 3
Badezimmer 3
Eigenschaften
Schwimmbad: Si
Extras
Terraza
Energieausweis

In der Pipeline

Nach Informationen fragen

Balear Invest 1.jpg

Möchten Sie eine
Immobilie veröffentlichen?

Lassen Sie sich von unseren Fachleuten beraten und helfen Sie ihnen, Ihre Immobilie zu den besten Bedingungen zu verkaufen. Wir bieten Ihnen einen umfassenden Service, bei dem wir Sie bei jedem Schritt des Verkaufsprozesses in rechtlichen und finanziellen Fragen beraten.

Kontaktieren Sie uns